



Tieftemperaturzentrum Berlin
„Reibungsflächen für die Wissenschaft“
Die aktuelle Unterbringung im 1911 errichteten Warburgbau der Physikalisch-Technische Bundesanstalt kann die für wissenschaftliche Messungen notwendigen Raumanforderungen nur unzureichend erfüllen.
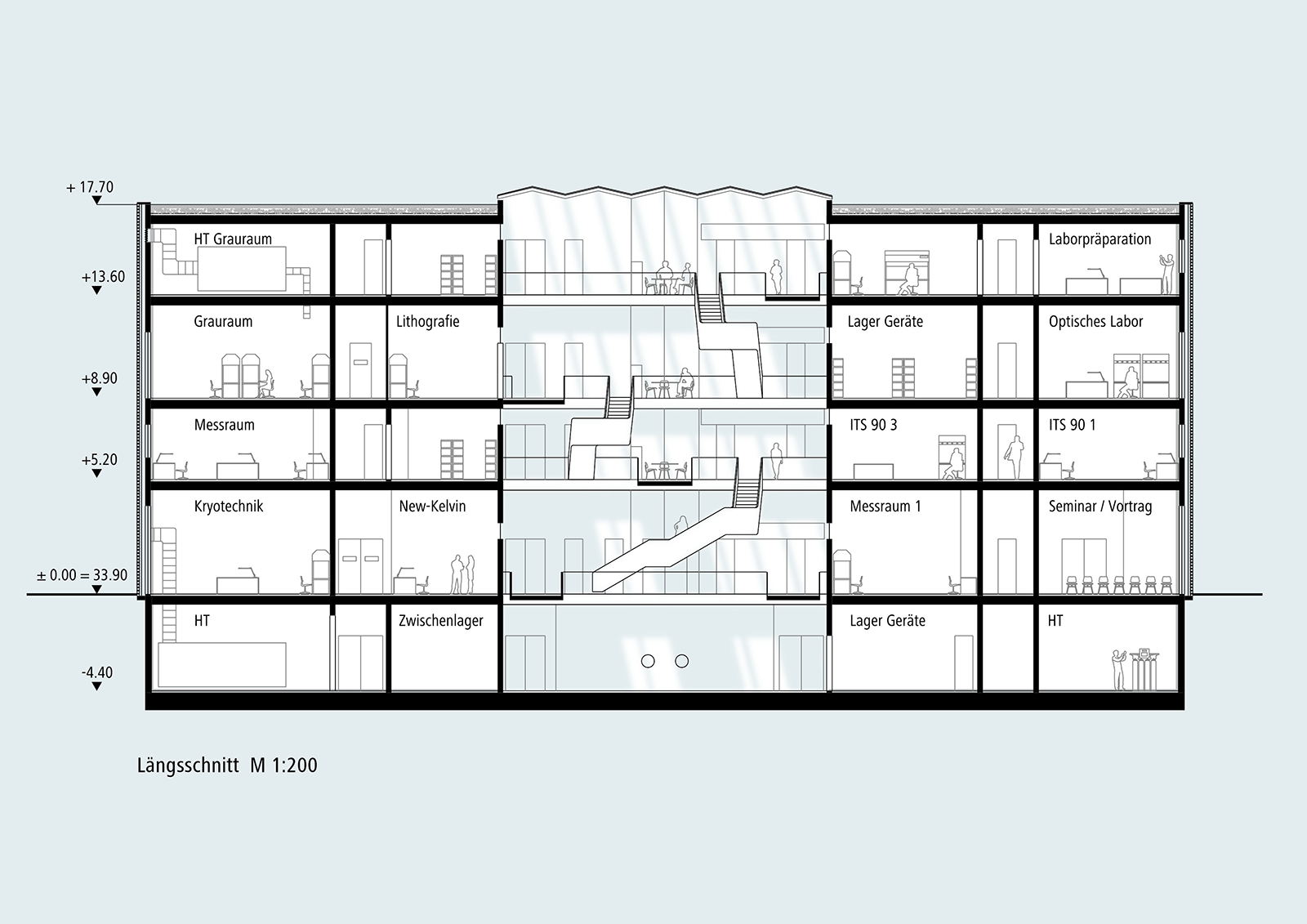
Zur Sicherung zukünftiger Forschungen, auch im Nano-Kelvin-Bereich, ist die Zielsetzung für den Neubau des Walther-Meißner-Baus optimale technische Bedingungen herzustellen, darüber hinaus sollen befruchtende Schnittstellen geschaffen werden, die vielfältige Möglichkeiten zum informellen und fachlichen Austausch der Wissenschaftler untereinander eröffnen.
So rückt nicht allein das Gebäude als technisch „perfekt funktionierende Maschine“ in den Fokus der Entwurfsbetrachtung, sondern ebenso wichtig wird der sozial eingebundene Wissenschaftler, der sich zum geistigen Austausch mit Kollegen, Assistenten und Studenten trifft. Hierfür haben wir Räume der Bewegung und Begegnung, „Flächen der Reibung“, aber auch des Aufenthalts und der Entspannung gefunden in der sich Labore und Büros „fingerartig“ gegenüber stehen und durch eine Zone der Kommunikation miteinander verbunden sind
Information
Auslober: BBR
nichtoffener Realisierungswettbewerb
Beratung Statik: Schlaich Bergermann Partner, Haustechnik: ZWP, Brandschutz: HHP Berlin
Standort: Berlin
2013