


Stadtentwässerung Mannheim
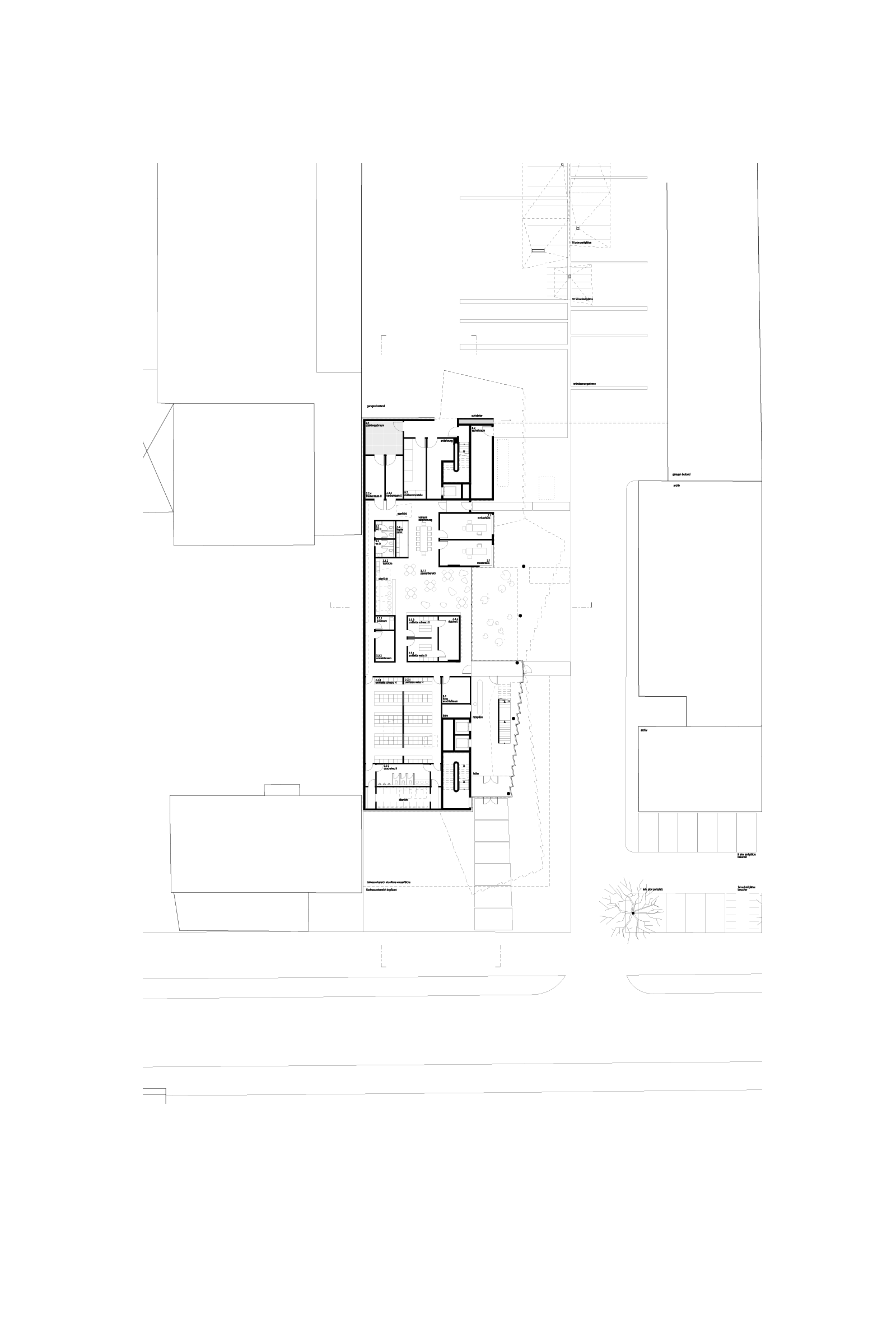
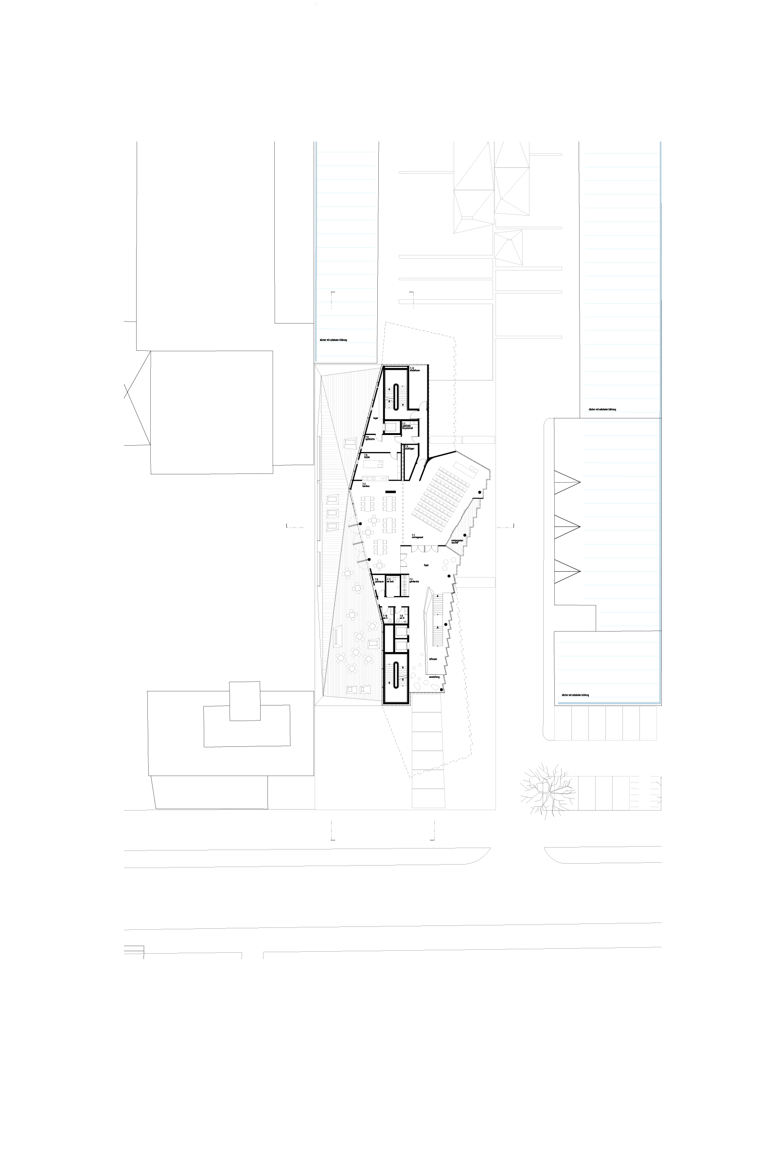
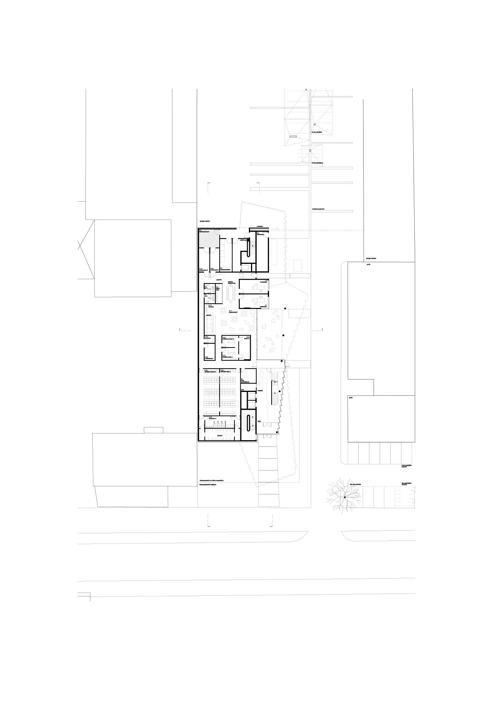
Unser Entwurf für die Stadtentwässerung Mannheim versucht vermeintliche Gegensätze neu zu bewerten und nachhaltige Lösungen zu schaffen. Im Zentrum steht die Funktionsvielfalt von Wasser.
Wasser wird als Speichermedium, Kühlmittel, Reflektor, als Aggregat und Pflanzraum eingesetzt und als Lebensressource sichtbar gemacht.
Die massive Basis des Gebäudes erhebt sich aus einer Wasserfläche. Zur Vermeidung unerwünschter Aufwärmung werden in der Südfassade die Fensterflächen auf 35% reduziert, die mit satiniertem Glas verkleidete Aussenfassade besitzt bündig eingesetzte Lochkastenfenster mit integriertem Sonnenschutz, sie dienen der natürlichen Belichtung der fassadennahen Nutzungen.
Diesem „Gebäuderücken“ steht die funktionsbezogen gefaltete Nordfassade in Holzbauweise gegenüber, ausgebildet in einem Achsraster von 1,35m, bestehend aus großflächig festverglasten Dreifachisoliergläsern und hochgedämmten Lüftungsklappen zur individuellen Stosslüftung. Die geschlossene Fassade des Erdgeschosses bleibt betonsichtig, die verglasten Teile erhalten eine filigrane Glasfassade.
Information
Auslober: Stadt Mannheim
nichtoffener Realisierungswettbewerb/Anerkennung
Beratung Statik, Haustechnik: Arup, Außenanlagen: topotek, künstlerische Beratung: Nikolai von Rosen
Standort: Mannheim
2010