



Technologie- und Gewerbepark, Lingen
Prolog
Am südlichen Stadteingang von Lingen entsteht ein innovativer Ort für Kommunikation, Kontemplation und Produktion. Ein zentraler Freiraum verbindet Arbeit und Erholung, Dichte und Offenheit. Die Firma Lühn realisiert hier ein Ensemble als ersten Baustein einer neuen Landschaftsachse – ein inspirierendes Umfeld, das Technologie, Ökologie und Lebensqualität vereint.
Freiraum
Die Freiraumstruktur verbindet ökologische Nachhaltigkeit mit hoher Aufenthaltsqualität. Ein zentraler Nord-Süd-Park schafft Verbindung zwischen Wald und Feldflur und dient als Regenwasserspeicher. Ein linearer Teich mit naturnahem Ufer verbessert das Mikroklima. Der Park ist Gemeinschaftseigentum und bietet Wege, Besprechungs- und Rückzugsräume sowie Fitnessmöglichkeiten.
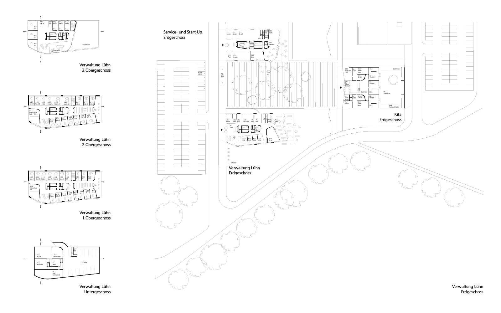
Findling, Ring und Steg
Die Gebäude erscheinen als „Findlinge“ entlang einer definierten Baulinie an der Erschließungsstraße. Eine Ringstraße minimiert Verkehrsflächen, während drei großzügige Stege von der Straße in den Grünraum führen. Hier befinden sich Gastronomie, Sport- und Kinderbetreuungseinrichtungen.
Findlinge
Jedes Gebäude ist einzigartig, folgt aber gemeinsamen Prinzipien: Eine offene Sockelzone verbindet Innen- und Außenraum, während massive Mittelgeschosse die Struktur prägen.
Erscheinungsbild und Konstruktion
Das Lühn-Verwaltungsgebäude kombiniert verglaste Sockel mit massiven Obergeschossen aus Beton. Textile Dachgeschosse sorgen für Leichtigkeit und setzen in der Nacht ein leuchtendes Zeichen.
Innenräume & Werkhalle
Das Verwaltungsgebäude umfasst vier Obergeschosse mit offenen, flexibel gestalteten Büro- und Besprechungsräumen. Die Werkhalle präsentiert Betonfassaden als kreatives Schaufenster der Baukunst und wird von asymmetrischen, begrünten Dächern überspannt.
Weitere Gebäude & Plätze
Das Start-Up-Gebäude ermöglicht flexible Büroflächen und eine Cafeteria mit direktem Zugang zum baumbestandenen Südsteg. Der Kindergarten gruppiert sich um einen geschützten Hof. Drei begrünte Plätze gliedern das Gelände und verbinden Gebäude mit dem Park.
Prologue
At the southern entrance to Lingen, an innovative space for communication, contemplation, and production is taking shape. A central open space harmonises work and leisure, density and openness. Lühn is creating an ensemble as the first step in a new landscape axis – an inspiring environment that blends technology, ecology, and quality of life.
Open Space
The spatial structure integrates ecological sustainability with high-quality outdoor spaces. A central north-south park connects the forest and fields while serving as a rainwater reservoir. A linear pond with a natural shoreline enhances the microclimate. This shared park features pathways, meeting areas, quiet zones, and fitness spaces.
Findlings, Ring, and Bridges
Buildings are designed as “Findlings” (glacial erratics) positioned along a defined building line. A ring road minimises traffic impact, while three spacious bridges link the street to the green corridor, hosting dining, sports, and childcare facilities.
Findlings
Each building is unique yet follows a consistent principle: an open ground-floor zone blurs the boundaries between interior and exterior, while solid upper-storey volumes provide structure.
Design & Construction
The Lühn headquarters features glazed ground floors beneath massive concrete upper levels. Lightweight textile-clad roof structures ensure visual contrast and glow subtly at night.
Interiors & Workshop Hall
The headquarters comprises four storeys of open, flexible office and meeting spaces. The workshop hall showcases concrete facades as an architectural statement, topped with asymmetrical green roofs.
Additional Buildings & Plazas
The start-up hub offers adaptable office layouts and a café opening onto a tree-lined bridge. The nursery school is arranged around a sheltered courtyard. Three landscaped plazas connect buildings to the park, enhancing accessibility and interaction.
Information
Auslober: Gerhard Lühn GmbH & Co. KG
nichtoffener Interdisziplinärer Planungswettbewerb in zwei Phasen
Außenanlagen: Weidinger Landschaftsarchitektenline
Standort: Lingen
2018