




Neustrukturierung, Sanierung und Erweiterung der Gesamtschule Gießen-Ost
Die Grüne Schule, Gestaltungskonzept
Lernen verändert sich stetig. Die Schule wird mehr als ein Lernort – sie ist Lebensraum für Erfahren, Mitteilen, Entspannen und Bewegen. Unser Entwurf integriert vielfältige Beteiligungsmöglichkeiten für Schüler.
Nutzungskonzept
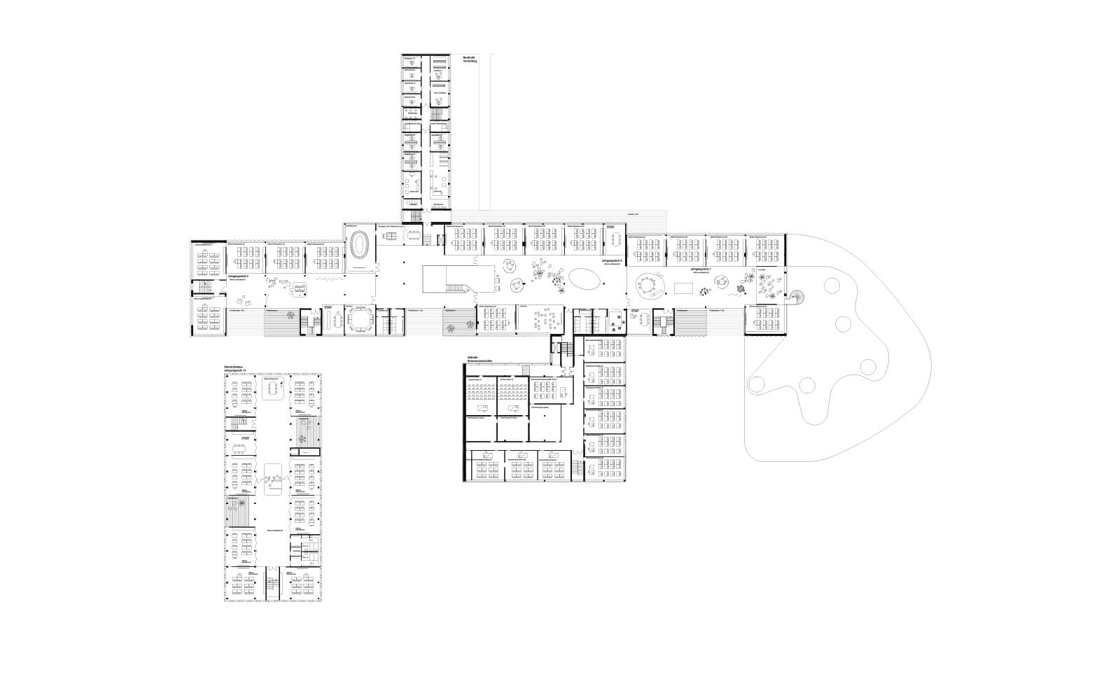
Das Hauptgebäude öffnet sich mit einer Glasfassade. Eine neue Mensa aus Holz ergänzt den Bestandsbau. Der Theaterraum präsentiert sich als eigenständige Kubatur. Drei Eingänge führen in die neugestaltete Schullandschaft mit offenen Räumen für Präsentationen und Austausch.
Das Erdgeschoss teilt sich in die verglaste Mensa, das zentrale Foyer mit Mediothek und Theater sowie den Westtrakt mit Fachräumen. Die Obergeschosse verbinden sich räumlich und bieten pro Etage drei Klassenbereiche mit zentraler Lernlandschaft. Klassenzimmer mit Glasfronten zur Lernlandschaft ermöglichen flexible Nutzung. Eine südorientierte Terrasse dient als „Freiluftzimmer“.
Der Südtrakt beherbergt Werk- und Naturwissenschaftsräume. Zwei Aufzüge sorgen für Barrierefreiheit.
Oberstufenhaus & Mensa
Ein Neubau für die Sekundarstufe II bildet eine räumliche Ergänzung. Die Mensa bietet verschiedene Bewirtungsformen und nutzt Höhenunterschiede für gestaffelte Speiseterrassen.
Konstruktion & Materialien
Bestandsgebäude werden erhalten und modernisiert. Holzbauweise ermöglicht nachhaltige Erweiterungen. Sichtbeton, Holz und Glas prägen die Innenräume, mit energieeffizienter Fassadengestaltung für optimale Dämmung. Nachhaltigkeit steht im Fokus, bestehende Ressourcen werden maximiert, Rückbau erfolgt nur bei energetischer Notwendigkeit.
The Green School, Design Concept
Learning is constantly evolving. The school is more than just a place of education – it is a living space for experiencing, sharing, relaxing, and moving. Our design integrates diverse opportunities for student participation.
Usage Concept
The main building opens with a glass façade. A new wooden cafeteria complements the existing structure, while the theatre stands as an independent unit. Three entrances lead into the redesigned school landscape, featuring open spaces for presentations and interaction.
The ground floor consists of the glazed cafeteria, the central foyer with a media library and theatre, and the west wing with specialist classrooms. The upper floors are spatially connected, offering three classroom areas per level, each centred around a shared learning landscape. Classrooms with glass fronts provide flexible use, and a south-facing terrace serves as an "outdoor room."
The south wing houses workshop and science rooms. Two lifts ensure accessibility.
Sixth Form Building & Cafeteria
A new building for the Sixth Form complements the school’s layout. The cafeteria offers various dining options and uses different levels to create stepped dining terraces.
Construction & Materials
Existing buildings will be preserved and modernised. Sustainable extensions are made using timber construction. Exposed concrete, wood, and glass define the interiors, with energy-efficient façades ensuring optimal insulation. Sustainability is key, maximising existing resources and limiting demolition to cases of energy efficiency necessity.
Information
Auslober: Universitätsstadt Gießen, Der Magistrat, Hochbauamt
nichtoffener Realisierungswettbewerb
Außenanlagen: Herrburg Landschaftsarchitekten, Tragwerk: Dipl. Ing. Andreas Külich, Beratung Brandschutz: Sachverständigenbüro für Brandschutz Arnhold
Standort: Eichstätt
2018