




Erweiterung Berufsschule, Eichstätt
Prolog
Die Erweiterung der Berufsschule Eichstädt an der Burgstraße wird durch die Hanglage, die Willibaldsburg und die Nähe zum Mondweg geprägt. Die Baukörper fügen sich optimal in die Topografie ein und verschmelzen durch feingliedrige Fassaden mit der Umgebung. Die bewusste Auflösung klarer Kanten erzeugt ein wechselvolles Licht- und Schattenspiel und eine subtile architektonische Präsenz.
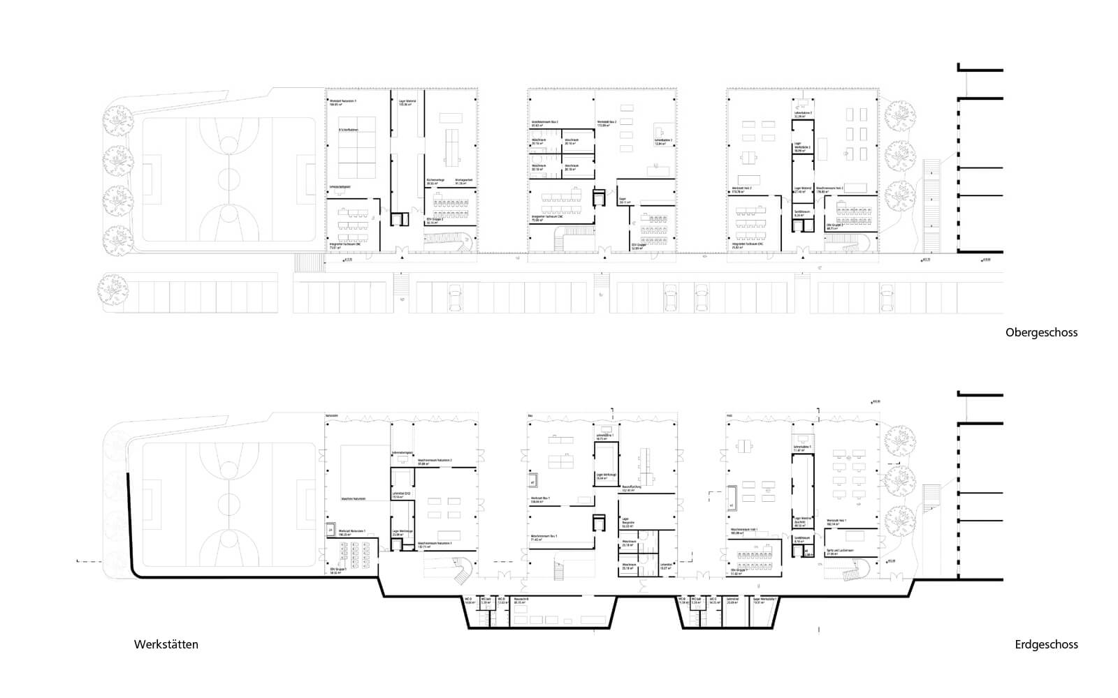
Werkstatthäuser
Die Anordnung der Werkstätten folgt dem Bebauungsplan. Staffelungen und leichte Auskragungen schaffen regengeschützte Vorzonen. Jedes Haus besitzt ein eigenes Foyer mit direkter Anlieferung. Eine zentrale Promenade verbindet die Gebäude und dient der Erschließung gemeinsamer Räume.
Turnhalle und Klassentrakt
Diese Baukörper sind durch eine gemeinsame Erschließungsterrasse verbunden. Ein doppelgeschossiges Foyer ermöglicht die separate Nutzung von Turnhalle und Schule.
Fassaden
Leichte Pfostenriegelfassaden aus Holz und Stahl schaffen eine rhythmisierte, funktionale Gebäudehülle. Lisenen modulieren Licht und sorgen für Sonnenschutz. Erdgeschossfassaden öffnen sich großzügig zum Außenraum und ermöglichen Arbeiten unter freiem Himmel.
Außenanlagen
Neben Erschließungsflächen entstehen Aufenthaltsorte wie Pausengarten, Mensaterrasse und Sportfeld. Rampen und Treppen sorgen für eine barrierefreie Nutzung. Die Wegespange verbindet Gebäude und Pausenbereiche, während ein „Grüner Rücken“ mit gezielter Bepflanzung Sichtachsen zur Willibaldsburg inszeniert.
Sichtachsen
Durch Bepflanzung und Raumsituationen wie den „Talblick“ werden visuelle Verbindungen zum Altmühltal betont. Versickerungsfähige Materialien minimieren die Flächenversiegelung, während differenzierte Asphaltbänderungen Nutzungsbereiche klar gliedern.
Prologue
The expansion of the Eichstädt Vocational School on Burgstraße is defined by its hillside location, proximity to Willibaldsburg, and connection to Mondweg. The buildings blend seamlessly into the topography, with finely structured façades that dissolve clear edges, creating a dynamic interplay of light and shadow for a subtle architectural presence.
Workshop Buildings
The workshops follow the development plan, with staggered roofs and slight projections creating sheltered outdoor areas. Each building has its own foyer with direct delivery access. A central promenade connects the buildings, providing access to shared spaces.
Sports Hall and Classroom Block
These structures are linked by a shared access terrace. A double-height foyer allows for the separate use of the sports hall and school
Façades
Lightweight post-and-beam façades made of wood and steel create a rhythmic and functional building envelope. Vertical wooden slats modulate light and provide sun protection. The ground floor façades open generously to the outside, enabling outdoor workspaces.
Outdoor Areas
In addition to access routes, the design includes recreation areas such as a garden, terrace, and sports field. Ramps and stairways ensure accessibility. A pathway network connects buildings and courtyards, while a "Green Spine" with selective planting frames key views of Willibaldsburg.
Sightlines
Strategic landscaping and spatial features, such as the "Valley View" between the sports hall and classroom block, enhance visual connections to the Altmühl Valley. Permeable surfaces reduce soil sealing, while differentiated asphalt banding defines functional areas.
Information
Auslober: Landkreis Eichstätt
VgV-Verfahren mit integriertem Planungswettbewerb
Außenanlagen: Herrburg Landschaftsarchitekten, Tragwerk: Happold Ingenieurbüro GmbH, Beratung Brandschutz: Sachverständigenbüro für Brandschutz Arnhold
Standort: Eichstätt
2017