









Baufeld 84b, Hafencity Hamburg
Unser Entwurfskonzept stärkt die formale Reihung ähnlicher Gebäudekubaturen entlang der Promenade am Baakenhafen, das Wohn- und Geschäftshaus versteht sich als ein Baustein der Stadt und überlässt den bereits gesetzten städtebaulich dominanten Abschluss dem zukünftigen Hochhaus der Architekten Murphy & Partners.
Diese Form des Understatements ermöglicht das Haus von innen heraus zu denken und gleichzeitig mehrdeutige Beziehungen zu den jeweiligen Außenräumen aufzubauen und optimierte Wohn- und Arbeitsgrundrisse für unterschiedlichste Lebensformen zu gewährleisten. Das „in Tuch gehüllte Haus“ bindet souverän und selbstverständlich in das zukünftige Stadtgefüge ein.
Ein Haus wie von einem Schneider; die auf einem gläsernen Saum aus Glas ruhenden leichten Volumen der Obergeschosse scheinen mit einem fein linierten, changierenden Tuch bekleidet zu sein. Darüber hinaus suggerieren die feinen konvexen und konkaven Kanneluren der Fassade einen stofflichen Faltenwurf, der sich im wechselnden Lichteinfall verändert und dem Gebäude zusätzlich einen fast immateriellen Eindruck verleiht.
Als Fortschreibung dieses textilen Erscheinungsbildes bestehen die Balkonbrüstungen aus liniert bedruckten Verglasungen mit einer Blickdichte von 90%. Durch die leichte oszillierende Transparenz scheint hier der Eindruck der „stofflichen Immaterialität“ zur Gewissheit zu werden, dabei bilden die Linierungen der Glasbauteile einen, in der Dimension skalierten, Rapport aus, der als nuanciert textiles Submuster erlebt wird.
Die Linierungen setzen sich aus unterschiedlichen Farbfamilien mit jeweils 5 Farbtönen zusammen, diese Familien verändern sich sukzessive über die Fassadenflächen und ändern sich abrupt in ihrer Farbzusammensetzung je nach Himmelsrichtung. In der Form eines „lineareren Pointilismus“ gelingt es so, individuelle atmosphärische Farbstimmungen „im Auge des Betrachters“ entstehen zu lassen.
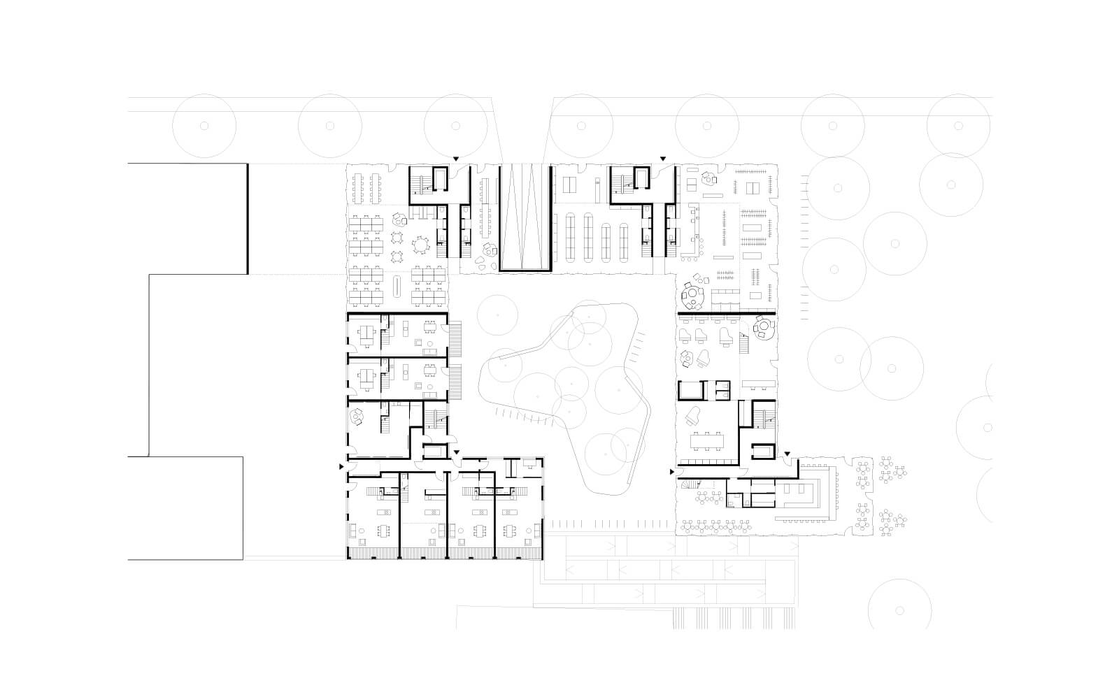
Der Nutzungsschlüssel folgt den Festsetzungen der Auslobung, die einzelnen Nutzungsbereiche der Wohn- und Arbeitsbereiche gehen teils fließend ineinander über, dieses Bild wird auch innerhalb der Fassade erkennbar, ohne dass die unterschiedlichen Finanzierungsmodelle konkret ablesbar werden. Das Haus wird grundsätzlich über ein an der Fassade angeschlossenes großzügiges doppelgeschossiges Foyer mit Briefkastenanlagen etc. erschlossen. Die über ein Treppenauge verfügenden Treppenräume bieten bewusst einen „gewissen Luxus“ von Offenheit und Kommunikation. Alle weiteren Erschließungen, insbesondere in den Vorfluren und innerhalb der Wohnungen wurden minimiert, die gewonnenen Flächen ermöglichen großzügige Wohnräume mit teils panoramaartigen Fenstern. Die aus ökonomischen Gründen sinnvollerweise übereinander liegenden tragenden Wände und Sanitärstränge der Wohnungen bilden durch die unterschiedliche Lage von Fenstern und Terrassen sinnvolle individuelle Wohntypen aus.
Die Mikroappartements besitzen je Geschoss oder alternativ alternierend jedes 2. Geschoss einen Gemeinschaftsraum, der über ein großzügiges notwendiges Treppenhaus erschlossen, geschossspezifisch oder geschoßübergreifend genutzt werden kann.
Our design concept strengthens the formal sequence of similar building cubatures along the promenade at Baakenhafen harbour. The residential and commercial building sees itself as a building block of the city and leaves the already set urbanistically dominant conclusion to the future high-rise building by the architects Murphy & Partners.
This form of understatement allows the building to think from the inside out, while at the same time establishing ambiguous relationships with the respective outside spaces and ensuring optimised living and working layouts for the most diverse forms of living. The "house wrapped in cloth" integrates confidently and naturally into the future urban fabric.
A house as if made by a tailor; the light volumes of the upper floors resting on a glass hem of glass seem to be covered with a finely lined, iridescent cloth. In addition, the fine convex and concave flute shapes of the façade suggest a material drape that changes in the changing incidence of light and gives the building an almost immaterial impression.
As a continuation of this textile appearance, the balcony balustrades consist of lined printed glazing with an opacity of 90%. Due to the slightly oscillating transparency, the impression of "material immateriality" seems to become a certainty here. The lines of the glass components form a repeat scaled in dimension, which is experienced as a nuanced textile sub-pattern.
The lines are composed of different colour families, each with 5 colour tones. These families change successively over the façade surfaces and change abruptly in their colour composition depending on the direction of the compass. In the form of a "linear pointilism" it is thus possible to create individual atmospheric colour moods "in the eye of the beholder".
The key of use follows the stipulations of the award, the individual areas of use of the living and working areas flow into each other in part, this image is also recognisable within the façade, without the different financing models becoming concretely visible. The building is generally accessed via a spacious two-storey foyer with letterboxes etc. connected to the façade. The stairwells, which have a stairwell, deliberately offer a "certain luxury" of openness and communication. All further developments, especially in the corridors and within the flats, have been minimised; the areas gained allow for generous living spaces with partly panorama-like windows. The load-bearing walls and sanitary lines of the flats, which for economic reasons are sensibly placed one above the other, form meaningful individual types of living space due to the different positions of windows and terraces.
The micro-apartments have a common room on each floor or alternatively alternately on every second floor, which can be accessed via a generously dimensioned staircase and can be used on a specific floor or across floors.
Information
Auslober: PATRIZIA Deutschland GmbH
nichtoffener hochbaulicher Realisierungswettbewerb: Anerkennung
Außenanlagen: GM013 Landschaftarchitektur, Tragwerk: Dipl. Ing. Andreas Külich, Haustechnik: Fuchs Ing.gesellschaft mbH, Beratung Brandschutz: hhp Berlin, Beratung Akustik: Ing.büro Moll
Standort: Hamburg, HafenCity
2019